
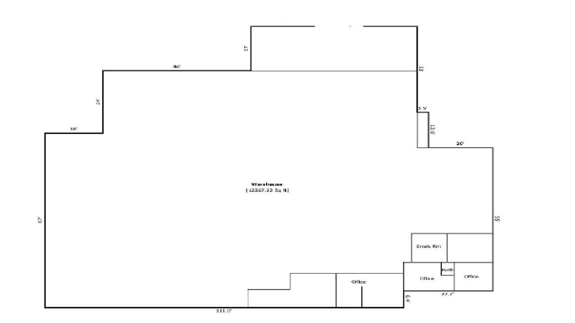
New ListingHigh-Visibility Commercial Warehouse - Located just 10 minutes from both downtown Branson and Forsyth, this expansive commercial property offers outstanding potential in a rapidly growing area of the Ozarks. With over 12,000 sq. ft. under roof and more than 160 feet of Highway frontage, it provides maximum visibility and easy access for large trucks, making it ideal for a variety of commercial or light industrial uses. The layout and location make this property perfect for light industrial operations, auto or boat repair, diesel service, warehousing, contractor supply, or other service-related businesses. The site offers ample space for parking, storage, or future expansion, with convenient access to surrounding communities and major highways. This property combines size, visibility, and locationan excellent opportunity for investors or business owners looking to establish or expand their presence in the Branson area. Opportunities like this are raresecure this prime commercial site today!
| MLS # | 60309002 |
|---|---|
| Listing Type | For Sale |
| Style | Other |
| Sub-Type | Resale |
| Status | Active |
| Year | 1996 |
| Days On Site | 3 |
| Listing Provided By | Keller Williams Tri-Lakes | Jeff Reynolds |
| Bath(s) | 1 |
|---|---|
| SQ Feet | 12,267 |
| Acreage | 1.03 |
| Garage Yes / No | No |
|---|---|
| Attached Garage Yes / No | No |
| Parking Features | 16-20 Spaces |
| Utilities | Public Sewer, Public Water |
|---|
| Property | 1850 |
|---|
| State | MO |
|---|---|
| County | Taney |
| City | Kirbyville |
| Zip Code | 65679 |
| Community Name | Tall Oaks |
| State | MO |
|---|---|
| County | Taney |
| City | Kirbyville |
| Zip Code | 65679 |
| Community Name | Tall Oaks |